- 找3d模型上欧模网
案例 2021年05月12日

北京老城区里的生活痕迹和“接地气”的建筑肌理,让深藏在胡同里的旅宿品牌得以展现特有的空间品质,并持续吸引远方来的旅人驻留体验。每次在胡同里穿行,都被大大小小的院落里形态各异的老房子所吸引。




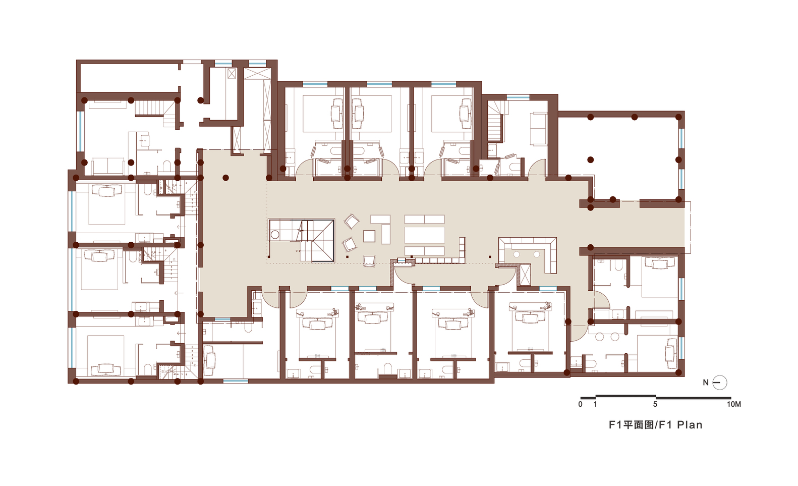
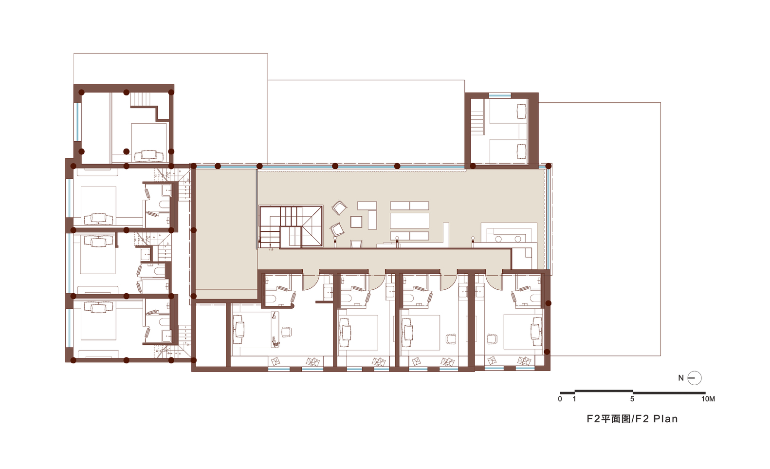
三好三好酒店选址改造的大院子在胡同里并不常见,由于复杂的建设背景,充足的挑高和规整的室内庭院原本属于一个传统的客栈空间,用最为通俗的中式元素装点在房子的各个角落。而针对三好三好的品牌调性,我们需要做新的规划和恰当的更新,当然,紧迫的设计施工周期也是改造的挑战。





初始,建筑原有装饰拆除,我们被这座老房子精到的屋顶木质结构所吸引,更大程度上增加了空间的丰富度和视觉特性。在13间客房依旧紧凑的布局排布开后,大屋顶下的庭院便成了旅客进入酒店的核心场所。相对内向的空间,我们将一组轻盈的竖向交通放置其中,让加盖的二层和首层庭院有了更轻松的连接。两层空间也都为客人预留了公共活动空间,陌生人之间的交流和碰撞也有了小小的角落;在大屋顶下的阅读,交谈,发呆成为酒店的一部分。


我们回应原有的结构比例,加固的柱子与屋顶横梁顺势连接,所有的设计都在原有老建筑的构造逻辑下展开;楼梯本身的构造自然也成为空间中的一个视觉焦点,但其转折的形式和尺度依然控制在整体的氛围中。在氛围营造的方式上,视觉的主色调是不同的灰色的肌理下用原木和暗红色组合配比,同样也是将人们在胡同的直观感受抽象化整理,质朴细腻。


对丰富繁杂的胡同居住空间有好奇的旅客进入到这间老建筑气息的场所,去体验厚重的质感以纤细的方式解构组合,是我们和ttg的伙伴在项目伊始就秉持的原点。我们相信,从胡同到庭院,从庭院到客房,每一次行走与观望都是从老房子里生长的痕迹。



标签:
声明:
本文由发布人:【137****7830】进行上传及发布,原文章/作品著作权归原作者所有,仅供个人学习交流使用,不构成商业目的;如需商业用途,请联系原作者授权后使用,如涉嫌侵权被追究法律责任与欧模网无关!
本站网友评论及内容发布仅供其表达个人看法,并不表明欧模网的立场或观点。
137****7830
文章:512 问答:0