{{ COMMON.userInfo.value.model_list_count }}
欧模网 > 欧模社区 > 案例资料 > 案例 > 家居别墅 > 住宅公寓 > 60㎡小空间公寓设计案例,寻求心灵的静谧!
案例 2021年12月13日
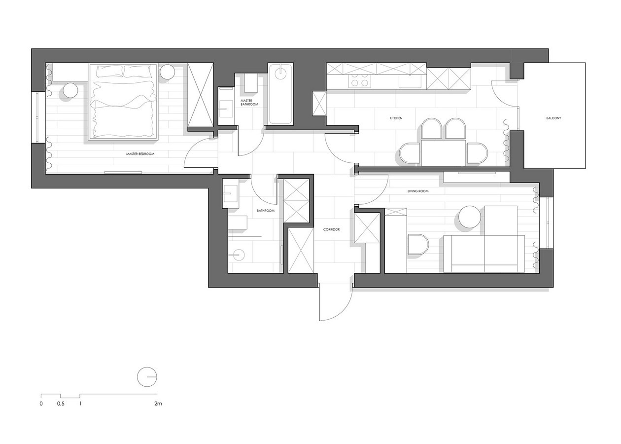
面积为60㎡小空间公寓设计案例,简约舒适,寻求心灵的静谧!
标签:
公寓设计 小空间
声明: 本文由发布人:【F2LzY5】进行上传及发布,原文章/作品著作权归原作者所有,仅供个人学习交流使用,不构成商业目的;如需商业用途,请联系原作者授权后使用,如涉嫌侵权被追究法律责任与欧模网无关! 本站网友评论及内容发布仅供其表达个人看法,并不表明欧模网的立场或观点。
F2LzY5
文章:3 问答:0
不花钱,教你学会VR与CR材质互转!
3dmax打开弹出“应用程序错误”对话框解决办法(2018年版)
CR渲染器会取代VRay吗?答案是……
162㎡现代简约成都美年中心D户型--李玮珉 & 中熙设计