- 找3d模型上欧模网
案例 2022年03月21日

提倡“心做”摒弃“形式”,是GRK张晓光设计对每一个儿童空间设计的最根本的要求!
这些年来,我们奔赴于全国各地优秀托育机构、幼儿园、学校,在和不同地域的甲方进行接触沟通时,他们对自己的将来园所做出很多设想和期望,给我们增添了意想不到的想象。由于我们设计的空间环境主要服务于特殊的群体,因此不仅要对孩子们的生理特点作出详细了解,更要深谙孩子的心里特点。
生活中,作为人父的我会有意识地和孩子或一起出游玩耍,或只是蜷窝于沙发和她很放松地聊聊天,从自己的孩子的身上窥见孩子的心理变化,幻想中的世界。他们是那样的天真无邪而富于变化,强烈的好奇心使得他们不甘于安静地静坐沉默的,等等,这些都成为我们在创作时所要考虑的元素。另一个服务的群体是家长。孩子入园,家长必须入学!因此我们在创作时还要考虑家长的感受,充分体现人性化。接送孩子时的休憩空间是否舒适温馨?参加亲子活动等一些公共活动时的空间是否宽敞、个性独特?…
给我一支笔或者一台PC,我将为你展现无限的趣味空间。
—— 张晓光
GRK张晓光建筑(北京)创办人
建筑师、高级室内设计师

项目地处安徽省阜阳市阜南县,属内陆开发较早地区,位于安徽省西北部,淮河上中游结合部北岸。阜南城区是阜阳距离市区最近的县城,城北新区于2010年开始建设,阜南是三国名将吕蒙、 解放军著名将领聂鹤亭将军的故乡。

安徽省地图 ©GRK张晓光建筑
阜南县素有“名优特产县”、“天然资源库”之称,是全国粮食 生产大县、中国柳编之乡、全国唯一的农业(林业)循环经济示 范试点县,安徽省林业十强县、文化先进县。也是中国承接产业 转移投资环境十佳县。

阜南交通流线 ©GRK张晓光建筑

项目建于阜南城区,新村路以北,三塔路以东,安建淮畔世家小区内。随着当地人口的急剧增长和双职工家庭越来越多,“0-3岁婴幼儿谁来照看”成为摆在新晋父母、准父母面前的一大难题,一所全新的综合性国际托育中心因此应运而生。

项目投标现场 ©GRK张晓光建筑

汇报方案现场 ©GRK张晓光建筑
该建筑总层数为3层,原先性质为幼儿园,改造完成是一所面向0-3岁儿童的省级示范托育中心, 其中一层和二层区域为托育类的空间,三层为早教中心。

建筑西面 ©GRK张晓光建筑

建筑南面 ©GRK张晓光建筑

施工现场 ©GRK张晓光建筑

施工现场 ©GRK张晓光建筑

施工现场 ©GRK张晓光建筑

孩子进入园内,就开始与托育园建立了链接。面对父母的依依不舍、新而陌生环境时,孩子会对父母产生依恋,可能会露出几颗牙齿微笑或毫不妥协地大哭。父母也会产生那种离别时的压力。
为了让孩子有一个良好的入园适应,我们结合了国内外知名教育学者对大脑神经科学和依恋关系研究,以及诸多知名托育园教育家的大量实践成果,整个空间表达紧紧围绕“以建立爱的链接、父母与孩子之间情感的交接、孩子心理、适应性、认知情况”为重要核心,采用层层递进的手法,用亲切的姿态和合理的形体表达,为孩子们营造出一个充满亲切、温暖、探索与开心的天堂。
大厅 ©GRK张晓光建筑
这样孩子入园后能尽快安静下来,没有感受到离别时的压力和陌生紧张感,大厅的空间我们做了延伸,开放通透的大厅在满足基本功能需求的同时,也为孩子提供了一个舒适愉快的生活氛围。
绘本区 ©GRK张晓光建筑
大厅的背后是一个通往室外的一个精致景观花园,开放的视线,让整个空间室内外连在一起,模糊了室内外边界,孩子们可以自主尝试探索新环境,达到移步异景的效果;在那里,孩子们可以与自然亲密拥抱,玩耍时有自然中的花,草,树木,昆虫相伴。当孩子细节敏感期到来时细心观察的老师会带领孩子进入中庭花园,趴在地上观察土地上的昆虫,心智则又在环境中得到了发展,智慧便在此时产生。忙碌的大人常会忽略周边环境中的细小事物,但是孩子却常能捕捉到各种自然小奥秘。
楼梯 ©GRK张晓光建筑
创造自然,放松的环境,保证孩子得到均等发展的机会,受到平等的对待。因为,在自然、放松的状态下,孩子很容易发现生活的法则和宇宙的秘密,在行为中形成自律。
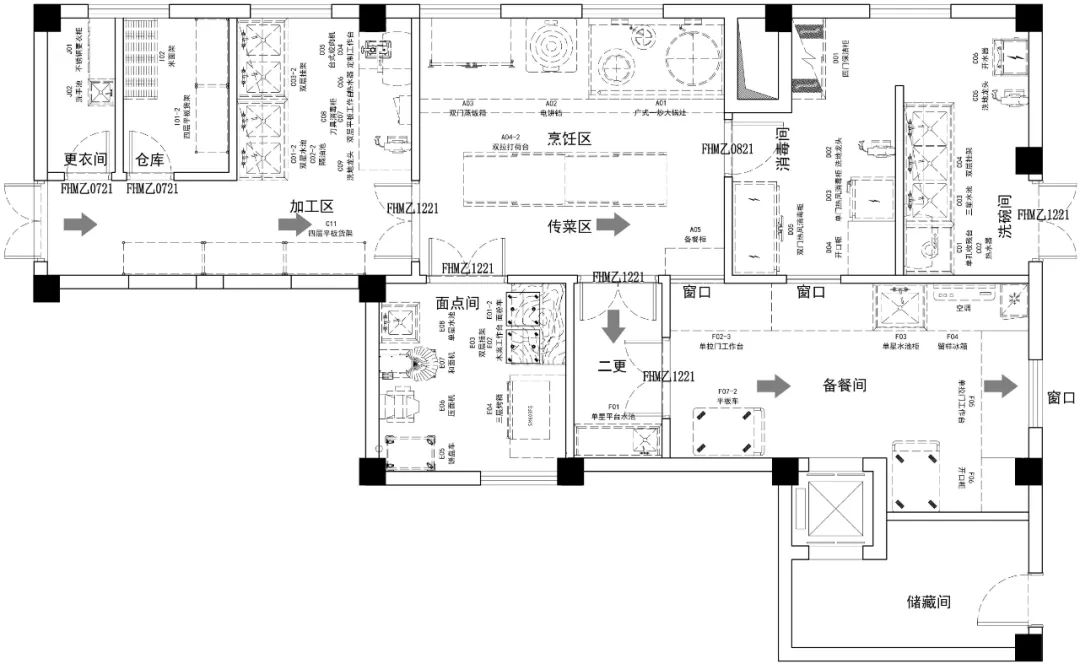
厨房区域功能分区明确,流线动态合理,规划分布达到省级A级食堂标准。

厨房布局©GRK张晓光建筑

内部公共区域的墙角进行了圆弧处理,部分墙体采用自由曲线的表达手法,突出其好奇心,激发孩子探索的欲望,整个空间我们采用了白色系列,象征着孩子纯洁无垢的心灵,同时为老师和孩子提供了更广阔的发挥和想象空间。
走廊©GRK张晓光建筑
墙面的挖空区域的玻璃窗可以清楚的看到活动室区域空间,在保证隔音的基础上也增加了空间的通透感,内部的空间处理也使得动线更加丰富多姿。
多功能厅©GRK张晓光建筑
白色包罗万象,白色无限可能,白色激发想象力… …老师后期可以在白色空间里摆放教学所需的所有五颜六色的教具。根据不同学龄段的孩子进行有准备的教学摆设,为持续发展提供更多的可能性,价值感油然而生。
托班活动室©GRK张晓光建筑
孩子也可以在这样整洁有序、精心准备的空间里心智得到了充分发展,在有序的行为中发现自己的天赋,从而有余力开展天马行空的想象。超我得以实现。
备餐区©GRK张晓光建筑
3岁前心理发展阶段总称为前语言期,即不会说逻辑的话,只能用肢体来表达,孩子借着听觉、视觉、味觉、触觉等感官来熟悉环境、了解事物,透过潜意识的“吸收性心智”来吸收周围事物。

二层开放活动区©GRK张晓光建筑
据此,我们通过形体的表达凸显多姿态多层次的丰富观感,与室外的环境相结合,触发幼儿触觉和观感器官更加敏锐,营造出了私密高贵的游乐空间感觉。设计避免了在任意一种形式上的重复。光线,材料以及交通路线创造出许多意想不到的场景,延升出多个孩子可探索的区域,这些区域的相互结合,共同拼凑起这一纷纷攘攘的热闹景象。
三区公共区©GRK张晓光建筑
空间体块的灵活处理更多的是不知不觉中引导孩子感知生命力,引导孩子以平和情绪配合老师的授课。为早期教育提供适宜且具有发展性的空间,甚至提供永久教具(延伸至地面的涂鸦墙);同时在公共区域,我们还准备了新奇的游戏环境,在这里,他们可以攀爬,也可以自由的奔跑和玩耍。公共区周围藏着许多培养运动技能的小玩具,乐高墙,用来开发他们的智力。
活动室©GRK张晓光建筑
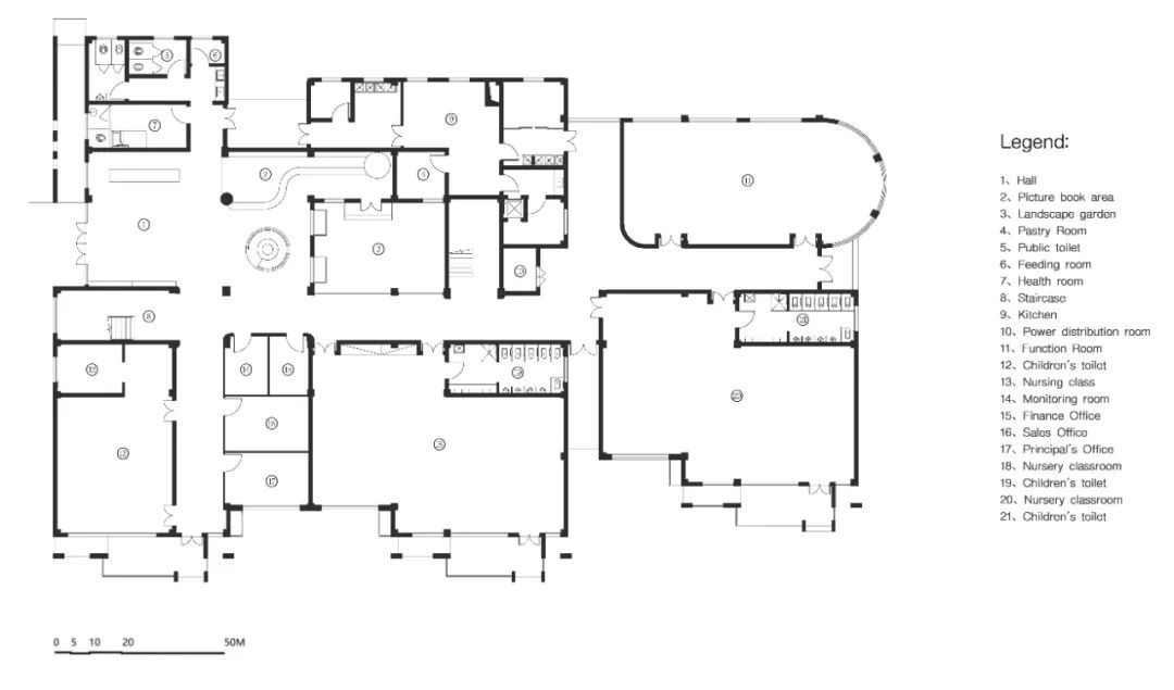
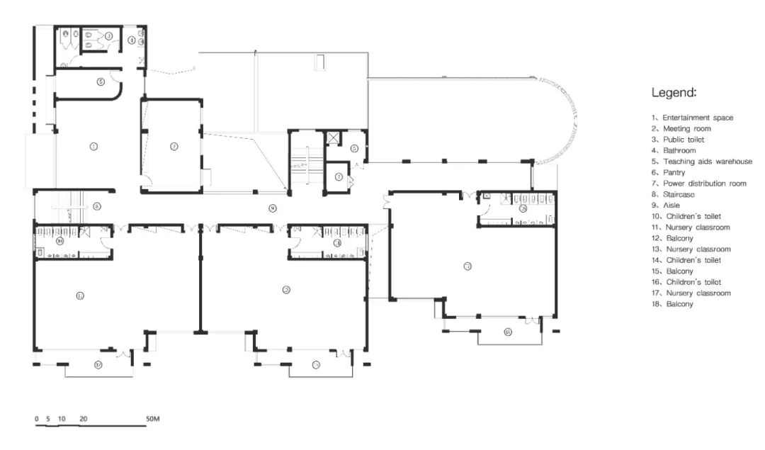
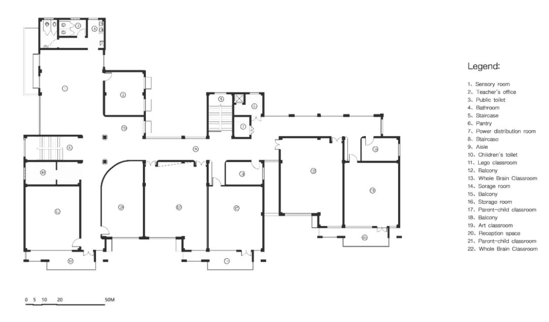
平面布局

1F plan ©GRK张晓光建筑

2F plan ©GRK张晓光建筑

3F plan ©GRK张晓光建筑
项目名称:阜南县保健院淮畔世家托育中心
业主单位:阜南县妇幼保健院
设计单位:张晓光设计顾问(北京)有限公司
主持设计:张晓光
设计团队:左红丽、韦世超、黄雨新、代鹏、刘艳青、张永新、丛辰铭、史漾
施工单位:安徽劦鑫建设工程有限公司
监理单位:安徽欣耀工程管理有限公司
建筑面积:2710.98平方米
建筑高度:11.1米
项目状态:施工阶段

张晓光
建筑师、高级室内设计师
GRK建筑(北京)创办人、设计总监
2020年中国室内设计百强人物
设计作品曾多次荣获国内外设计大奖
编辑 / coco 图片/ GRK 审核 / Adam
本文由Great kindergarten architects(简称:GRK张晓光建筑设计)授权发布,
图片版权归GRK张晓光设计所有。
欧模网官方
文章:372 问答:0