- 找3d模型上欧模网
案例 2022年11月30日

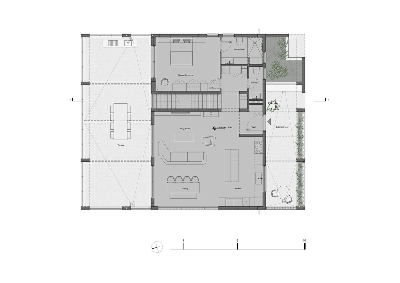
该住宅位于地中海和以色列沙漠地区之间的接缝处,面向山下的人造树林。设计的挑战是处理炎热的气候,同时让他们感受户外,并保持居住者的隐私。
The house is located on the seam between the Mediterranean and the desert areas of Israel, facing downhill over a manmade grove. The design challenge was to deal with the hot climate while allowing them to feel the outdoors and keeping the privacy of the habitants.


房子的几何形状干净简单,保持了白色盒子的直线。但在盒子里有独特的形状、材料和诠释,使盒子为居住者和游客提供不断发展的体验:从炎热的南街道进入前面的绿色花园是航行的第一步。从前面的花园,接下来的体验是进入一个封闭的有阴影的户外门厅,装饰着藤蔓和人造花盆。
The geometry of the house is clean and simple, keeping the straight lines of a white box. But within the box there are unique shapes, materials, and interpretations that make the box an evolving experience for its habitants and visitors: Entering from the hot south street to the front green garden is the first step of the voyage. From the front garden, the next experience is entering an enclosed shaded outdoor foyer, decorated with vines and built planters.


室外门厅的南立面由Mashrabiya混凝土块制成,目的是在保持气流和视野的同时屏蔽热量。搬进房子的过渡过程正在逐步完成,让我能够感受房子,不是马上,而是一步一步的。打开前门进入密集的深色室内入口大厅,可以看到主要的生活空间和北边的露台和前面的山丘。露台是房子的主要户外空间,由梁和柱构成框架,定义了盒子的外部形状,覆盖着钢和木的凉架。
The southern hot facade of the outdoor foyer is made from concrete Mashrabiya blocks in order to screen the heat while keeping the airflow and the view. The transition into the house is graduating and allowing me to feel the house not at once, but step by step. Opening the front door into an intensive, dark-colored interior entrance hall, viewing the main living space and beyond to the north terrace and the hills in front. The terrace is the main outdoor space of the house, framed with beams and columns that define the box’s external shape, covered with a steel and wood pergola.




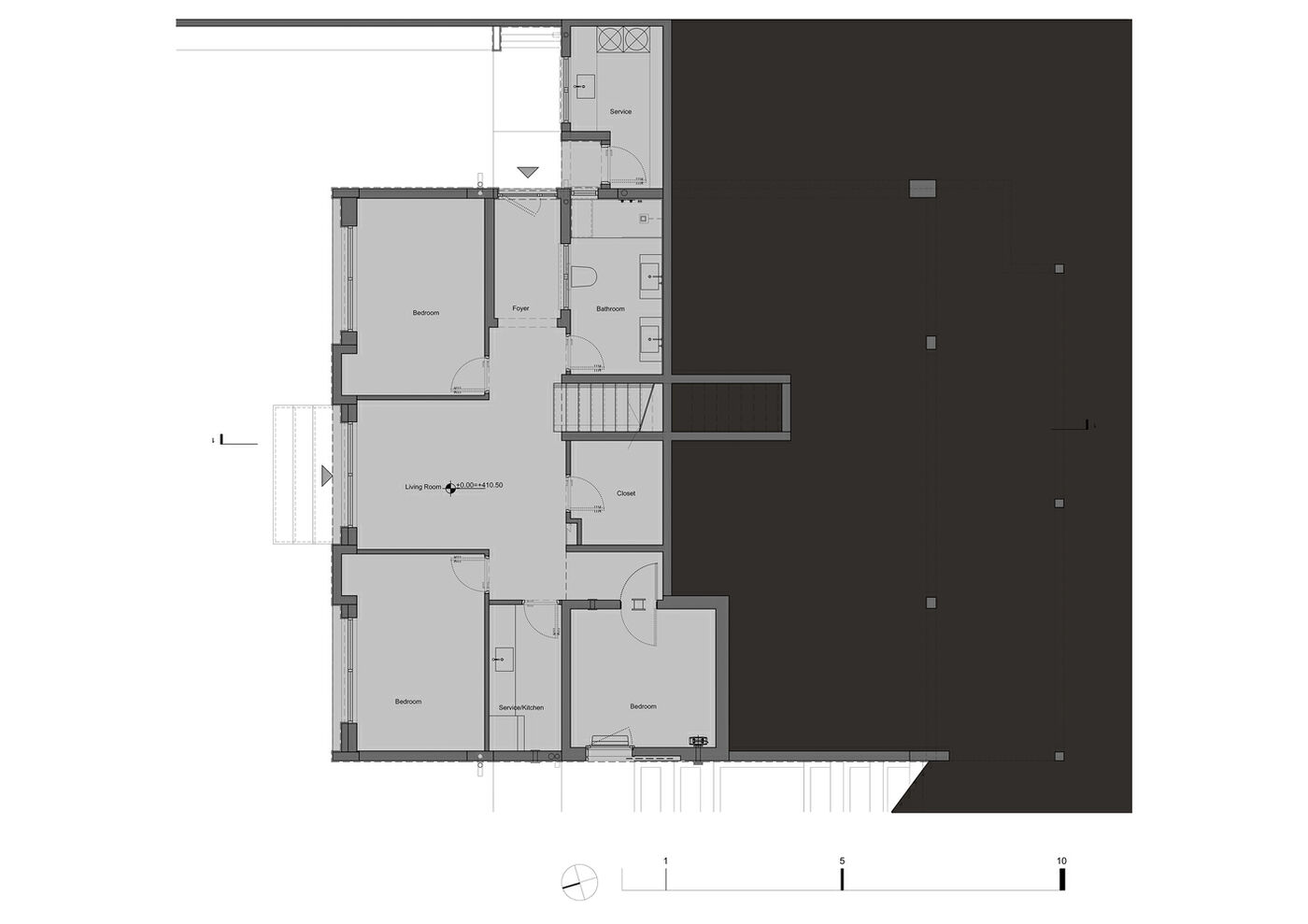
一个长长的线性楼梯也面对着景观,通向较低的楼层,那里住着两个十几岁的双胞胎女孩。因此,低层的布置尽量保持一定程度的对称,能够平等和平地分享空间。西立面的室外楼梯与植物和植物相结合,并通往较低的南部花园。室内设计服务于白色盒子的概念,充满了自然材料和颜色,融合了沙漠和地中海风格。
A long linear staircase that also faces the view leads to the lower floor, where two teenage twin girls live. Therefore, the arrangement of the lower floor tries to keep a measure of symmetry to be able to share the space equally and peacefully. An outdoor staircase at the west facade is combined with planters and vegetation and leads to the lower south garden. The interior design is serving the concept of a white box, filled with natural materials and colors, merging both the desert and the Mediterranean styles.



▼项目更多图片




















建筑事务所Architects:Architextit- Einat Erez-Kobiler
面积Area :250 m²
年份Year :2021
摄影Photographs :Dror Kalish | Linoy & Dror
首席建筑师Lead Architect :Einat Erez-Kobiler
景观设计Landscape Design :Idit Avishay
项目管理Project Management :Kprojects
摄影造型Photograpy Styling : Linoy Landau
建筑Constructions : Hillel Engineers
室内设计Interior Design : Einat Erez-Kobiler
城市City : Meitar
国家Country : Israel
藤蔓梦境师
文章:4 问答:19