- 找3d模型上欧模网
案例 2022年12月24日




世上大多的事物都是矛盾又统一的吧。诸如黑白明暗,天地山河,动静冷热,又如瑜伽中的身体与精神,体式与冥想。也如空间中的造型实体与氛围……“帕坦伽利在《瑜伽经》中指出,体位法具有两个重要的特质:“住”(sthirayi)与“乐”(sukha)。“住”指的是稳定与警觉“乐”指的是“在某种姿势里保持舒适的能力”。无论我们练习的是哪一种姿势,两种特质都不可偏废。即使已经做到了住的“稳定”与“警觉”,也还应达成乐的舒适与轻快,而且两者都要能持久。” ——《瑜伽之心》。我们对瑜伽习练空间的设定,也秉持相通的内在动力。好的瑜伽空间,应不只是一个专业瑜伽的习练场地,还要让习练者与空间有“乐”的联结。项目位于数个低层建筑散落而成的商业城中心区域,占据所属单体建筑南侧,分上下两层:一层的三面按间设门。二层东南装有灰色玻璃幕墙向外悬挑,西侧广告位间隙有两个小窗。整个建筑形似三个体块粗犷的并集,与整个商业城有着统一表皮。内部空间挑空无柱,由于二层挑出,南侧窗口外的光线只能探进一步,而西侧两个高窗射进的光线锋利自由,时间改变着光影打在建筑上的位置。驻于原始场地,虽满眼皆是窗,心中却黯然。




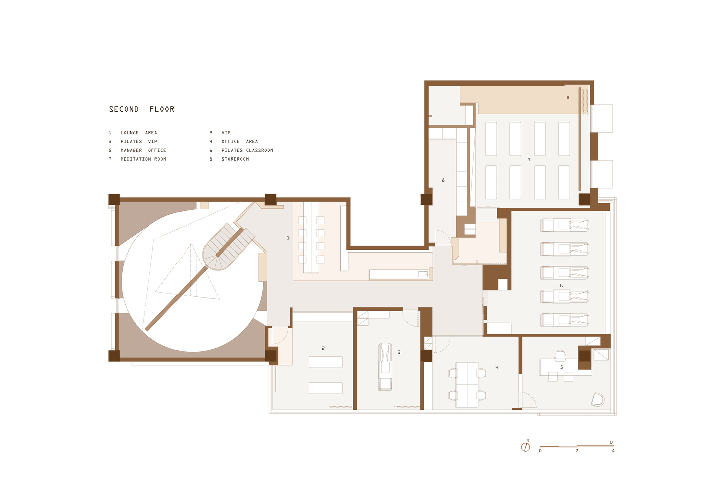
我们将所有习练室贴近采光侧,除去入口玻璃移门,一层所有原始开门均替换成固定玻璃,门洞便成为窗口。 二层玻璃幕墙区域,在玻璃幕墙表面散布的装饰方通基础上,依据原始散落秩序设了同色横档,白色波浪半透阳光板敷于之上,来隔绝原始外立面大比重的灰玻,再一次柔化光线。并将LOGO后置于阳光板,最大面的原始表皮被消隐掉。阳光板下挂超出玻璃面,像裙摆,虚化与一层的交错。上下檐口不做封堵,阳光板与幕墙间形成风压,增加窗的通风量。入口作为内外空间的联结点,决定以什么样的视角打开内部空间 。内部空间的划分排布,决定入口的设立方位。场地三面皆可为入口。我们将习练室分布于上下层靠窗侧,东西侧便留空:西侧空间高挑,作为前区无疑是最合适的选择,入口便也依附于前区而设;东侧剩余空间,采光较差,一层设为卫生间、更衣区、保洁间,二层最深处无疑适合冥想空间。正如瑜伽中对呼吸方式的建议,“在吸气的时候,先将气吸入胸部、再吸入腹部;而在呼气的时候,先排出腹部的空气,再让胸腔内上肺叶的空气最后排出。”我们的前区就是这“L”形空间的胸腔,往后便是腹部。






前区的排布,围绕一座“园”展开。前区是外挂于上下两层空间一侧的园,一座盛放身体与精神的园,呈方形,被中心升起的片墙二分,前园接待,后园休憩,二分空间功能属性,又二分习练者不同精神状态。墙从地面生根,三边均不与周边相接,前后端自然流出两个窄缝,联结两侧,墙像是可自由旋转的拨钮。园顶面环园围合,地面水磨石呼应顶面环形抬高。后园靠窗一段水磨石,嵌入软木成为坐台,后段提升高度,为高坐台靠背,又是软木小讲台的前沿。讲台面对大墙,与水吧共用一块空间,大墙成为最佳投影幕布。后园中心区域散落几张沙发,整个休息区轻快、舒适。前园从墙挑出一个三角形吧台,两边分别平行于所服务区域的边线,看似墙的脚,却悬而未落。驻于入口缝隙前望向墙,极窄,墙全然不在,成为两个空间最近的相遇面,两个空间可同时入目,其间游走于前园的习练者与放松谈笑于后园的习练者互不影响,对立又统一的空间充满戏剧感。墙后端有“裂谷”,极窄楼梯悬于之上,以软木围合,途中有一处踏步两步合成一,形成小平台,软木随行避开。习练者盘绕“山”中,视线可游离于两侧空间。登楼侧身之间又见一方景象。墙是两个区域的相遇面。“光”就是两个区域的结合点。




虽然整个前区充满了阳光,但有大墙的分隔,两侧光成为单个区域的专属,大墙垂直向上的压迫感,能让天空出现,加入不属于两侧的光,成了迫切的渴望。所以我们在大墙中心正上方,开了一方三角形天窗,三角旋转与”山“的走势形成45°夹角,天窗被原始结构梁贯穿斜切为两块。考虑夜晚不同区域对光的需求,东侧为通透的天窗,西侧为灯光膜,两边又同属于一个大三角。不论阳光还是人造光源都能跨过”山“照到两个区域。看到太阳光束的升降游移,正如茅盾对《天窗》中的描述“啊唷唷!这小小一方的空白是神奇的!它会使你看见了,若不是有了它你就想不起来的宇宙的秘密;它会使你想到了,若不是有了它你就永远不会联想到的种种事件!发明这"天窗"的大人们,是应当被感谢的。因为活泼会想的孩子们,会知道怎样从 “无” 中看出 “有”,从 “虚” 中看出 “实” ,比任何他看到的更真切,更广阔,更复杂,更实在!”

习练室与各功能空间落位后剩余空间形成的走道,紧贴整个空间的北侧,正是前区到各个功能空间最高效的动线轨迹。通往2号习练室的途径,有1号教室北侧玻璃砖滤过的光,越往深越显深邃。二层空间朝向一层入口划开一个口子,层板为了够到楼梯加的三角形挑出,侧面延续软木围合,与另一侧缺口扶手所划定的两个角落成为向下瞭望最好的观景台。二层嵌入墙体的休息区同样是习练室与办公室划分后的剩余空间,较大区域放置长桌,空出宽裕的走道空间,地面马赛克向后区延续,设立软木吧台,吧台向顶面折叠的软木,切于原始建筑突出的转角墙面与向上拉斜的吊顶。靠墙的石材墙柜,也向后区延续,与软木吧台同样停止于储藏间门口。对于光,二层裂口处,有从一层和西侧高处的窗,散射过来的光线,走道右侧是两间VIP习练室,靠休息区的一间做了半透毛玻璃,后区尽头的办公区全透玻璃与普拉提习练室的半透移门,也都让光线涌入。反而在水吧侧的VIP习练室做了封闭。 晦明变化间,习练者通过走道,双向都是向光而行。前端让休息区更加通透,后端在保证光亮的同时也为冥想室埋下伏笔。



接待区东侧,一块区域被马赛克覆盖,横一个软木坐台,供使用者换鞋与休息等候。马赛克地面藏进不到顶的墙体后,向右侧引导,转身进入便是1号习练室。习练室两片斜顶压在窗的上口向北侧照射,透过北侧的玻璃砖侵入过道。黑色地板延续公区色调。墙上橙色半透亚克力的视窗,是习练室与公区的另一个连接点。2号习练室是最大的习练室,同走道宽度的入口作为该习练室的预进区。习练室主背景墙上端下压,向外探到预进区与外部走道的上部空间。顶部在原始钢梁基础上下挂横板,两侧放置灯带,形成的条形照明系统伸进夹缝,空间的错位让习练室视觉延续。奇妙的是习练者像是出入于一个长条盒子。而习练于一个更大的广场...




两间VIP习练室顶面中心横穿一根大梁,在靠窗侧的顶面向上倾斜,用软木饰面,另一侧隐藏大梁和空调设备。窗户口设置香格里拉帘,阳光透过外立面阳光板与帘的双重过滤,柔和轻盈。普拉提习练室,由于空间内会使用瑜伽器械,顶面没有过多层级,保证充足的习练空间,并且顶面只用线性灯带防止眩光。隐,不是与外界完全割裂,而是保持最少的联系。二层走道尽头的软木体块是通往冥想室的入口,用力推开整面墙,便开启一个隐藏的空间。一个存放颂钵的黑色盒子从中探出身体,落在黑色地板上,悬于预进区域的黑马赛克地面。黑色体块不到顶,像是临时放置于此。入口对面是整个瑜伽馆习练室中唯一L形软木授课台,地台作用并不是强调授课老师,而是让台下的冥想习练者更沉浸于冥想。侧面悬挂下来的白墙遮住南侧窗,只留一个可以让光线通过的圆洞,并且背后设置了移动阳光板装置,开启可开窗通风,闭合二次滤光。光线斜洒进来打在金属花柱上,享受宁静的自然。授课台左侧伸进黑色体块,体块掏空一侧,一个独立的休息室便出现。



二分“园”好比体内的横隔分开胸腔与腹腔,这种对立统一的关系,促使我们思考瑜伽与空间彼此的关系与联结。在空间开合转换间,在闲散游走回望间,在瑜伽习练冥想间。希望使用者能感受到行望游走的趣味,空间转合明亮与阴翳的变化,让瑜伽习练者在此找到自己身体与精神的一隅。


137****7830
文章:512 问答:0