- 找3d模型上欧模网
案例 2017年08月16日
圣保罗是一个拥有2000万人口的大都市。严重的交通拥堵,使得城市云渲染居民每天花费很长时间在通勤的路上。且一到夏天的周末,蜂拥向海边的居民让交通状况变得更加严峻。为了回避这样的状况,业主向建筑师提出了一个意想不到却又合乎逻辑的想法:一个位于圣保罗市区的周末度假屋。

基地的位置非常靠近市中心,位于主干道Faria Lima大街和Pinheiros河岸公路和铁路的轴心之间。同时场地在机场锥形区域内,这意味着每7分钟就有来自里约热内卢的飞机在其上方飞过。
游泳池和日光浴场是整个项目的核心元素,其他的空间:包括一间卧室、一间佣人房以及厨房和客厅,都是附属的空间。由于政府对基地内的建筑物高度限定在6m,如果要建造一个全天都能晒到太阳的泳池和浴场,就必须将其架空到6m高的层面上去。
▽架空的泳池和日光浴场 the solarium and the swimming pool in the air
建筑师将泳池和日光浴场设计成两个平行的体量,二者之间有一条1m宽的缝隙。结构上,跨度12m向外悬挑的泳池体量跟另一侧同样跨度的居住空间体量相平衡。
为了保证最大的花园面积,基地的地面基本未占用。因此建筑师营造了三个基调全然不同的平面:花园层、居住层和屋顶层。
▽ 支撑结构 the supporting structure

▽ 泳池和居住空间体量的关系 the relationship between the swimming pool and the inhabited spaces

▽ 花园 garden

▽ 客厅 the living room

这座建筑与传统住宅项目的不同点主要体现在两个方面:其一,大都市成为一个可以逗留并享受周末的地方;其二,往往被认为是次要元素的空间成为这座房子的基本构成要素。
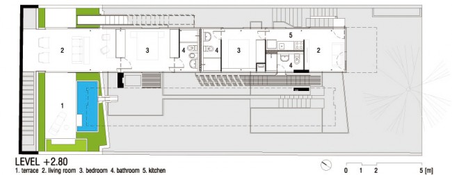
▽ 图纸 drawings
▽ 平面图 plans



▽ 剖面图 sections


大佬芝帅的一匹
文章:225 问答:0