- 找3d模型上欧模网
案例 2017年09月05日
为宁波的筑蹊生活书店设计了流动且富有变化的空间,其有机的几何与循环的路径作为具有推动力的“运输工具”,在触发人们好奇心的同时,将全新的生活方式带入公共空间和商业场景之中。建筑师与委托方自项目初期便确立的共同目标是,设计一个供人们闲逛和消遣的场所,将阅读作为核心功能,并为之补充一系列丰富多样的活动空间,使顾客能够就座、阅读、学习、参与工作坊以及现场活动;带来超越传统售书模式的全新体验,使该项目成为宁波及其周边地区的全新生活目的地。
▼书店概览

书店位于宁波市中心、余姚江南岸的和义路1844艺术生活中心广场,占据了一块L形的全地下场地。功能空间分布于现有的B2层(1600㎡)和新增的B1夹层(800㎡),总建筑面积接近2400㎡,整体分为三个不同的主要区域:书店主体、以新技术和饮食为主题的区域,以及位于二者之间的一个灵活的公共空间原创3d模型下 载。
穿过以石材铺设的广场中央的玻璃廊亭,便来到位于首层的主入口。巨大的悬挂式楼梯宛如盘旋的书架,将入口与夹层以及下方的主楼层连接在一起。白天,自然光从这座玻璃廊亭倾泻于书店内部,半透明的亚克力板在滤过阳光的同时,与白色的书架模块融为一体。夜晚,室内的人造光反过来将玻璃廊亭点亮,使其成为书店中闪闪发亮的陈列柜,同时也可用于各种各样的活动。
▼地面入口处的玻璃门廊

▼透明亚克力板与白色书架模块融为一体




楼梯首先到达就座区和阅读区所在的夹层,继而进入主要的地下楼层。4座楼梯为这两处空间提供了额外的纵向连接。环顾四周,墙壁上排列着通高的书架,犹如一条在整体空间中不间断循环的缎带,将不同的功能空间彼此区分或联系起来,引导顾客完成一场充满变化的书店之旅。建筑中除双层高的小型中庭、活动空间和儿童区外,还包含一间茶室、果汁吧、咖啡厅以及面包店。鉴于其中一些区域将由第三方雇主独立租用,因此项目的设计需要在保证使用的灵活性以及适应各种功能和品牌特性的能力的同时,使建筑整体巧妙地保持连贯和统一。
▼楼梯首先到达夹层


▼再往下进入主要楼层


▼流动而连贯的整体空间



与墙壁上的书架相对应,同时受到1960年代Michelangelo Pistoletto在瓦楞纸板中发现的“迷宫”的启发,设计师在书店中设置了相似的由透明独立书架和柜台构成的模块系统,从视觉上将空间划分为一些更小的“房间”和“小窝”,同时带来额外的就座和阅读机会,以及更多样的书本陈列形式。流动而有机的几何形态、柔软的材料和纹理,以及温暖的色调,象征着历史上不同的纸张和材料,从而巧妙地呼应了书本的内涵与实质。
▼独立书架和柜台带来更多阅读体验和陈列形式

一些较为紧凑和密闭的、服务于特殊功能的空间,如儿童书店和为视听活动准备的多功能空间等,皆被扩展至开放的双层高空间,如书店的中轴,以及用于家庭活动的图书岛。交通空间穿插着一些驻足区域,可供顾客为其喜欢的书本稍事停留,或用于进行一些集体性的活动。
▼交通空间中穿插着多功能的驻足或活动区域



▼用于家庭活动的图书岛

▼轴测图

▼夹层轴测

▼B2层轴测

▼家具示意图

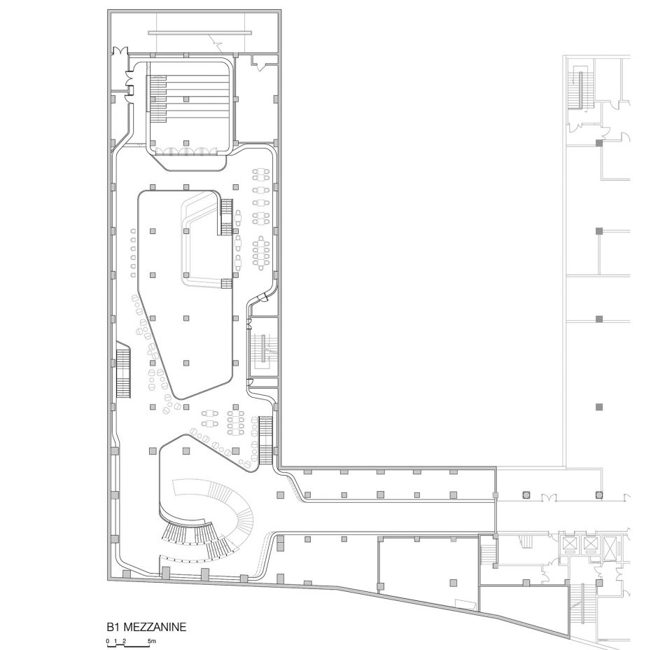
▼夹层平面图

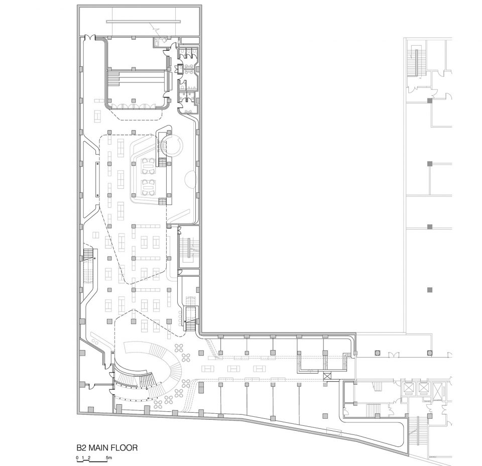
▼B2层平面图

▼入口平面图

▼入口楼梯屏


▼入口立面

设计宅家居优选
文章:1583 问答:0