项目名称:上海舆图科技有限公司办公空间改造
项目地址:上海市高光路
建筑设计:米思建筑
项目设计团队: 周苏宁、吴子夜、唐涛、毛军鹏
建筑面积:1700㎡
施工团队:南通捷力达建设服务有限公司
主要材料:黑色免漆板、清漆木饰面、彩釉玻璃、自流平水泥、铝合金方通
摄影:侯博文
文稿撰写人:周苏宁

本项目位于上海市西虹桥片区北斗产业技术园内,为独栋式办公楼顶层空间,原建筑格局为传统中廊式办公模式,建筑层高介于5米至6米之间,四面墙面采用传统竖条窗设计。甲方希望除了改善建筑的采光、通风等物理性能之外能创造一个带有开敞通透、具有时代感、面向未来的趣味性办公场所。
▼项目改造后,开敞通透、具有时代感、面向未来的趣味性办公场所
▼项目改造前
设计之初首先将本层建筑朝南外墙整体改造为全落地玻璃幕墙窗,极大改善室内的采光及通风。
▼建筑外观
▼全落地玻璃幕墙窗极大地改善了室内的采光及通风
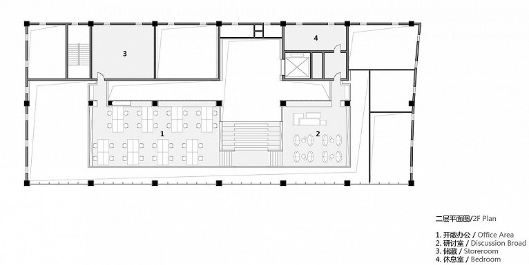
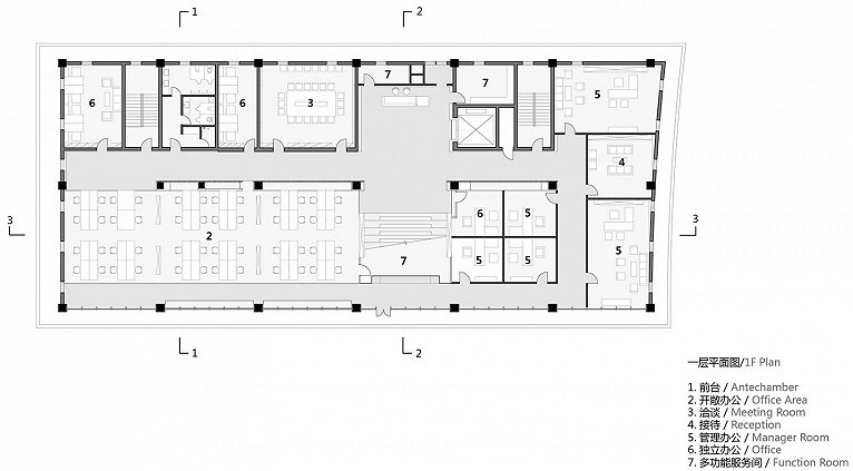
室内改造设计概念从水平向空间整合和垂直向空间拓展出发,设计重新组织了水平十字形公共交通空间,同时也划分了开敞办公及独立办公之间的区域,地面材料也采用深浅区分不同使用功能,本设计充分利用层高优势植入夹层空间,同时隐匿原建筑结构体系。
▼轴测分解图
▼入口大厅
▼电梯厅
▼回看入口大厅&前台
▼办公空间入口
经过对功能的整理,划分出水平和垂直两个不同的空间体验,并由一个硕大的木质感十字形态进行空间控制,所有的交通流线都围绕着十字形展开。这个十字横亘在通高空间之中,在隐藏结构的同时清晰表达出了空间的使用逻辑,最终希望能让空间的物质体验和精神感受达到强烈的统一和和谐,也给这个标榜科技和创造的场所引入了一个精神上的标识和图腾。
▼以木质十字为中心的办公空间
▼木质十字旁的交通空间
为了消解巨大的木质十字带来的封闭感,也为了给空间中增添一些活力和趣味性,设计中用竖向格栅增加墙体的通透性,南侧玻璃幕墙引入的光线穿过格栅空隙撒入公共走廊,人行其中跟开敞办公区增添些许互动。
▼办公走道与格栅立面
▼过道与天桥
▼墙体及构造细节
木质十字中还隐藏了一个滑梯,二楼办公的人员可以通过滑梯快捷的到达底层。穿过滑梯时,两侧的格栅所带来的朦胧光影变化和暧昧的视线联系创造出了全新的体验。据悉在使用过程中,十字中隐藏的滑梯很受欢迎,办公人员经常下楼都由此经过,给他们在工作的间隙也增加了不少乐趣。
▼滑梯
本设计采用建筑设计方法处理室内空间,言简意赅,为使用者提供了多种空间模式及体验。当空间的标识性和趣味性均汇聚与此,并被人们逐渐接受和慢慢喜爱,设计的初衷也就达到了。
▼一层平面图
▼二层平面图
{{ detailData && detailData.praise || 0 }}
声明:
本文由发布人:【室内设计精选】进行上传及发布,原文章/作品著作权归原作者所有,仅供个人学习交流使用,不构成商业目的;如需商业用途,请联系原作者授权后使用,如涉嫌侵权被追究法律责任与欧模网无关!
本站网友评论及内容发布仅供其表达个人看法,并不表明欧模网的立场或观点。