- 找3d模型上欧模网
案例 2018年10月29日
室内设计:内里空间设计创研所_欧模设计圈
地址:甘泉外国语中学, 上海, 中国
主创建筑师:吴佳青,林佳
建筑面积:800.0 平方米


本案位于上海市甘泉外国语中学教学大楼的屋顶,是一个平改坡后闲置空间的再改造项目。这是设计师们对学校空间改造设计的一种创新尝试,其空间设计完全不同于常规教室,以此传达甘泉学校的创智文化与创新精神。

同时为了能让空间的创智功能得以最大发挥,设计以主要使用者(即学生)的关注点为导向,通过“隐性教育”的设计理念(即儿童心理学、行为学、认识学等科学领域)来指导设计要素定位,从而打造最为合适的创智环境。

改造背景
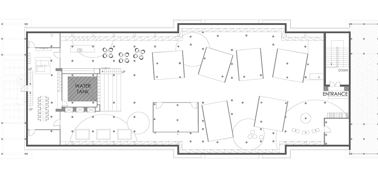
作为一个平改坡的屋顶闲置空间,存在梁柱密集、管线交错、光线昏暗、屋顶水箱等问题。

设计理念
要改造成一个全新的适合学生使用的创智学习体验空间,解决密集的立柱似乎成了设计上最大的难题。但如巧妙运用,是否可以将其转弊为利呢?于是设计师们逆向思考,便诞生了本案的创意主题“森林中的创意盒子”。

密布的立柱如同森林中的树木,我们将其巧妙地与房间、家具及公共空间相结合,以创造丰富有趣的绿色学习空间。这一设计也同时体现了人与自然和谐共处的理念。

立柱与”盒子”由于立柱过多,传统横平竖直的排列方式会导致内部盒子的空间使用面积变小,因此我们旋转调试每一组内部方盒墙体与柱子的间距,以及盒与盒之间的角度,将可用空间最大化,同时兼顾整体空间的美观性。

立柱与家具
我们试图探索立柱的与家具之间更为自然的结合形式:穿过桌子的立柱成了使家具变成了带轴线的有趣的旋转家具,柱子之间相互连起又形成了惬意自然的吊床等。

入口及展厅
自然简约的入口形象墙将我们慢慢带入这片即将充满惊喜的“创意森林”。展厅里则叙述着“森林”曾经发生的一切,即空间的整体设计和改造历程。

“创意盒子”
每一个盒子都用一种不同的鲜活颜色来标识,将学生们带入一个个不同的创意灵感空间。空间里又采用不同几何元素的功能装置及家具,从而形成色彩与形态多重组合的多维环境来激发学生们的创意与探索热情。

在“盒子”之间盒子摆布的各种夹角营造出各异的休息娱乐空间,供每间创意盒子中的学生就近休憩娱乐。

水箱大变身
利用原有设备水箱的自身高度和体量,设计师们竟然打造出这样一个兼备座谈、会议、影视功能综合阶梯式阅读区。

国际互动厨房
通过网络视频系统,学生们可以在这个空间里与国际上其它兄弟姐妹学校开展即时互动性分享,展示中国厨艺文化抑或交流西餐点心的制作。

历史遗存
设计赋予了整个空间焕然一新的风貌。同时为了让学生更好的了解这里的原始面貌,我们在空间的后半部区域(多功能创客空间)中进行了保留性设计,使原有建筑的历史风貌得以留存,从而让空间的“前世”与“今生”在此对话。

知识的“软性”植入通过平面设计的手法,我们将空间中运用到的科普性及设计心理学方面等小知识“软性”植入在空间各个相关的区域和产品上,让学生在使用空间的同时不知不觉地获取知识。

欧模设计圈_室内设计案例推荐:
2. 柳州 . 玖珑府别墅 | YORO御融设计_欧模设计圈
3. 192 ㎡,台湾台中 天青|YHS DESIGN-欧模设计圈
更多3d模型推荐: 3d模型下载 3d客厅模型 3d书房模型 3d餐厅模型 3d卫生间模型 3d别墅模型 3d衣帽间模型 3d酒吧模型
YJ
文章:19 问答:0