- 找3d模型上欧模网
案例 2018年11月03日
500㎡ 四层别墅 | 那墨空间设计工作室_欧模设计圈
设计机构:那墨空间设计工作室
设计主创:李娜
案例面积:500平米
建筑类型:别墅
摄 影 师: 恽伟
使用品牌:赛罗克橱柜木作、景畅门窗、简一瓷砖、汉诺地板、木原尚品楼梯、香奈宜居、法泰软装、集道家居艺术公司等。

这是一套四层别墅
500平米面积满足业主的常住人口需求
因是中间户型南向采光面会好些
中间部分采光较弱,白天需要开灯

△一层休闲会客层
当设计师李娜接到项目后
前期在整个户型的结构调整上花了很多心思
首先是对业主的家庭成员、生活习惯、预想效果等
进行深入的沟通和探讨
其次解决的是室内的采光问题
(在设计师与业主共同去过现场后,业主提出一层需要一间客房,原结构户型如强行增加一间卧室,无论大小搁置在哪都不太合适,经过讨论他们非常规的将厨房餐厅更改到了地下一层)

△地下一层餐厅
一层调整为了休闲会客层
本户型为中间户室内会偏暗
中间的书桌区,在结构处理上往室内退了半米
将夹道内的阳光很好的投射了下来
并且将整面墙改为折叠窗
能最大范围的扩大室内的视线,室内室外融为一体

会客厅内的沙发墙面的颜色
材质均统一以灰色和木的处理
平衡室内外的自然谧静


休闲区是一个多功能空间
连通室外与会客厅
整面巨大的折叠玻璃门
时刻开启室内外的互动关系
原结构墙面被改造成具有结构感的斜飘窗
增添了一个窗户,让视线更通透




二层将原有的一个房间扩充进了孩子房
扩充的区域做为了孩子自己的开放式学习区
将衣帽间及卫生间都分别划分进了孩子卧室
孩子的活动基本都能在自己的卧室
既开阔又有私密性




△一层门厅
门厅设计一个白色搭配木质框线的柜体
由门厅位置一直延伸至窗边
让户主有充足的收纳空间
同时达至扩阔居室视野的效果





卧室一侧将拓展出来的富余区域稍微抬高
成为了一个休闲坐踏区域

主卧室硬朗或柔和的纹理、冷或暖的色调
通过搭配产生了一种柔和的对比
竖百叶窗营造柔和的光影



卫生间顶面加建了采光天窗
顶面的采光玻璃也做了斜面处理
让阳光更好的折射下来,最大的扩大了采光面
使卫生间明亮开敞

地下一层,主要为生活层
为了处理地下室的阴暗问题
餐厅及厨房顶面都有大面积的采光玻璃
以及外侧下沉庭院的光线也很好的引到室内来
很好的解决了采光问题




厨房加建了顶面和墙面的采光窗
使得地下室的光线也非常的明亮

在地下室庭院一侧引入了一个新的楼梯
加建了一个下沉庭院
通过窗户使得餐厅及厨房的空间更加的开敞明亮
通高空间的引入将楼梯作为核心
并将日光从一层引导入地下室层最暗的区域

下沉庭院△

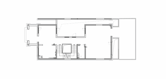
△一层平面图

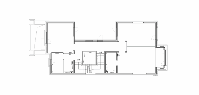
△二层平面图

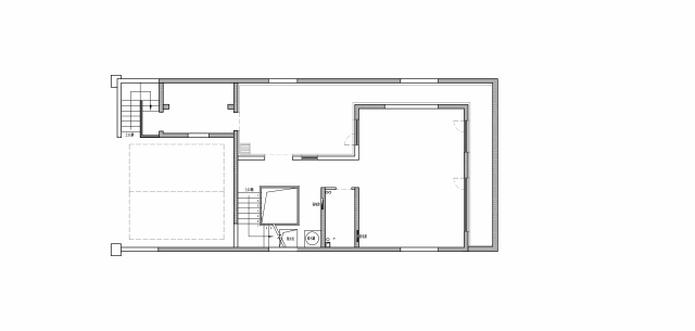
△三层平面图

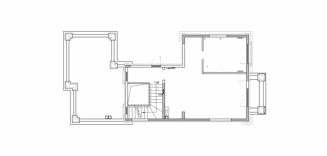
△地下一层层平面图
欧模设计圈_室内设计案例推荐:
1. 150㎡ 乐山 Truffle新型概念店 | 曾崧设计_欧模设计圈
3. 亿城燕西书院65、75小户型 | 上海天鼓装饰设计有限公司-欧模设计圈
更多3d模型推荐: 3d模型下载 3d客厅模型 3d书房模型 3d餐厅模型 3d卫生间模型 3d别墅模型 3d衣帽间模型 3d酒吧模型
YJ
文章:19 问答:0