李玮珉最新力作:北京鸿坤・林语墅滨水别墅_欧模网
项目名称:北京鸿坤・林语墅滨水别墅
开发建商: 鸿坤集团
项目地点: 北京
项目面积: 680平米
完工时间: 2018.09
设计公司: 李玮珉建筑师事务所+上海越界建筑设计咨询有限公司
专案经理: 方芯
设计参与: 李玮珉、杨林、俞昌靖、赵枫、刘金
效果图面: 郑人搏、曹彦、李志银、瞿娇娇
软装设计: 谈永琴 、季飞帆
摄影团队: Boris Shiu
品质铭刻在时间之中,从而让物以一种超越自身的完美存在得更久。——克里斯蒂安•布朗卡特《奢侈》
近30年的设计经历让李玮珉觉得越简约,越能看出事物本身的面相。这也是他打造鸿坤・林语墅的开始,从整体布局到立体设计皆去芜存菁,每处看似无奇的工序其实都隐藏着设计的思考。设计包含于人而作用于人
最终,指向独特的灵魂

理石纹路缠绕冷艳,留白艺术明净风雅,金咖色盘衍生性感。他笔下的林语墅别墅样板间,像一个外表淡然内心浴火的艺术家,既满足现代社会的生活方式,又带有人文气质的大度与优雅。
▲玄关
且这一感知,从入口便已经开始,玄关兼顾实用性与美感,天圆地方的造型,给人一种肃穆而静逸的仪式感。
▲玄关
通往客厅,是个下沉式的生活空间,大面积的开窗,清澈而明亮,日复一日向里注入蓬勃朝气,并把外部景观引入室内,可一览无余地欣赏周围的景观。
▲客厅
客厅设计偏向舒适的功能性,墙体以黑色石材打底又与金属线条创造勾缝层次,天花则采用极具当代特质的胡桃木和金属灯槽搭配,间接照明凸显节奏感。
▲客厅
家具款式呼应空间的简洁,线条亦十分直接、干脆,似乎没有一丝多余,看似不经意,却浑然天成。
▲客厅
另外,客厅的电视墙是不落地的悬挂设计,将厚重视觉轻量化,大面的玉石铺贴,让墙面宛若一件正在展示的大型艺术品,温和又富于质感。
▲书房
该悬挂墙还起到了分割空间之用,电视墙后的书房作为在客厅空间背后的附属区域,在强调了空间节奏感和主次关系的同时,也让整个客厅更添几分宁静与静穆的意味。
与之相连的餐厅以玫瑰金百叶为隔断,欲开又合,通透也私密,为体块空间的串联增加层次。
▲餐厅
“城市本身灰尘较多,零碎物件对后期清扫维护极不便利,而繁复的线条则多出于当下时尚或为了掩盖简陋的工艺,易过时。因此我选择体块感强、线条简练的设计架构。”
▲楼梯
楼梯间的简约通过墙面暗藏式石材扶手创造一道空间视觉的动线指引和内置LED间接光源细节,以及线型踢脚灯来丰富,简约亦不失简单。
▲楼梯
简约的作用之一是洞穿固有思维继而重新调整对待生命的态度
为了让设计更具持久性,避免落入‘流行色’的消费主义圈套,设计师以黑白灰为主色,干净的背景可使家具、装饰、光线甚至是艺术、情感更为突出,这也是简约的最大意义。
▲卧室
二层、三层主要为供家庭内部使用的主人房、老人房、儿童房、书房,设计手法以体现舒适性、私密性为主,最终让设计的意图与手法让位于生活。
▲卫生间
卫生间与起居室相连,以半透明夹丝玻璃完成空间转换,并透过玻璃的穿透性,让空间与空间相互延伸。个体功能上独立的同时增强了空间的延续性。
▲二楼起居室

▲二楼起居室
书房与起居室用木百叶移门相隔,通过移门的开合,创造出灵动的空间组合,使空间既可融为一体,也可单独使用。
▲二楼书房
两区墙面均采用优雅知性的白木纹石来完成空间的统一性及延续性。
▲卧室
主卧室位于三层,其层高不同于其他卧室的奢华高度3m,设计上也是采用了极简的手法,床背景使用略带肌理感的布料打造出触觉的背景。
所谓「家」,装点的是生活
抛开形式,从情感层面直切内心
在空间规划上,设计的一切都基于对生活的理解:家庭伦理的次序和人情的温度。继而结合到现代居住环境和空间格局之中,探索空间秩序和几何比例,使其呈现出简单自然的元素,予居住者一种真正的生活方式。
▲茶室
B1F主要是一些娱乐功能的休闲空间,也是每个家庭成员制造快乐记忆的共同场所。穿过走廊深入内部,每个空间依次展开,从开放到封闭,再到半开放,每个动线都被精心安排贯穿。
▲茶室
这里的点睛之笔,莫不过承启茶室跟藏品室之间的发光玉石墙,宛如上演光影角逐;插花柔情似水的高雅情怀,暗放氤氲清香。

▲茶室
借以美学的视角,搭建家具间一气呵成的体块关系,从视觉、听觉、嗅觉堆砌丰富而多元的情感空间。
▲SPA区
“还有家庭SPA室,墙面满贴条状观音石,天花地坪大面积以原木饰面装点,对开木百叶折叠门,透光不透视,共同营造出轻松自在的原生态氛围。” 李玮珉说。

▲SPA区
多功能室位于B2层,这是一个贯通酒吧与会谈的大空间,构成了其体验架构,便于聚会互动且开敞舒适。
▲活动室
多功能室大面积采用了编织皮革,柜内背衬壁布,细腻有质感。酒吧台更是温润剔透的玉石

▲B2酒吧
这里特别设置了下沉露台,水景玻璃顶,阳光透过水池波光粼粼的照在素净的石材墙上,让人不由想到一句话:房子,有光,才能供灵魂静修!如此设计,也于某种程度上贴合了大众对于李玮珉的评价:随意、自然、充满丰富的想象力。


▲软装概念图




▲效果图
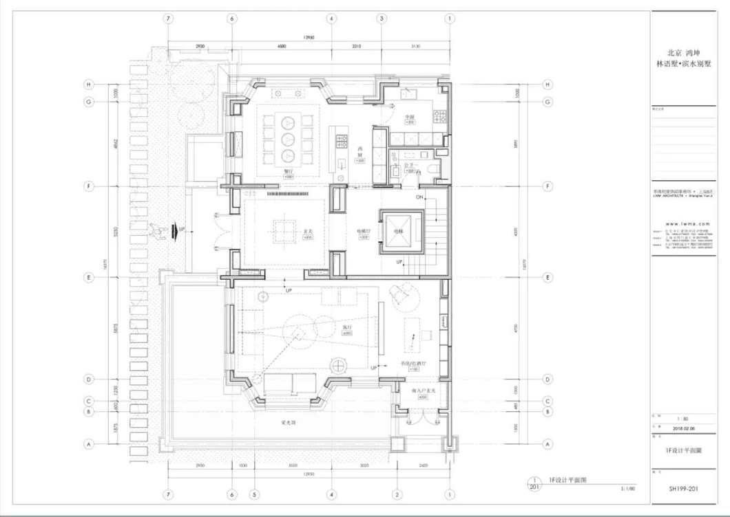
▲1F设计平面图
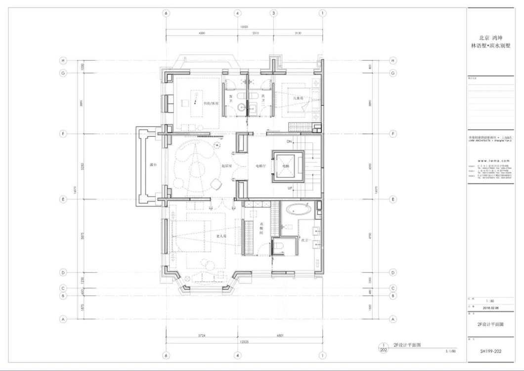
▲2F设计平面图
▲3F设计平面图
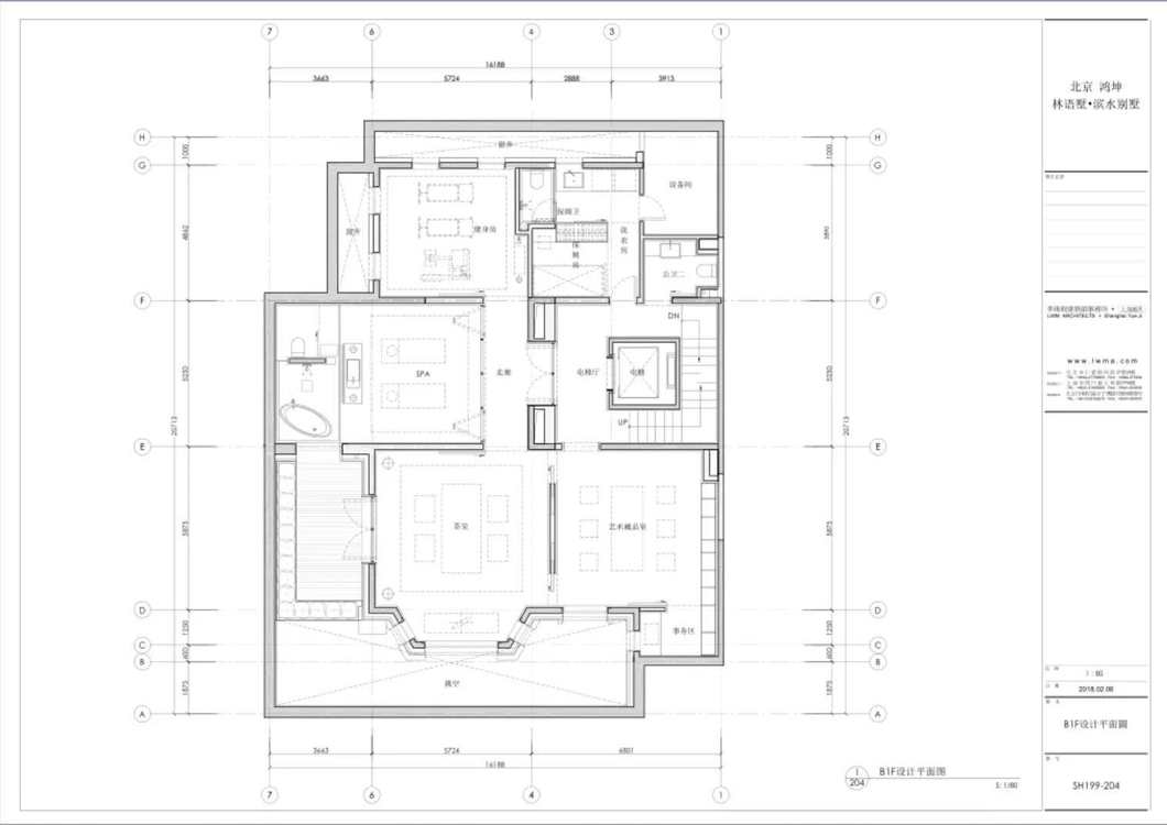
▲B1F设计平面图
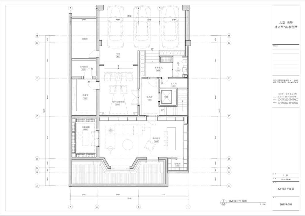
▲B2F设计平面图
欧模网-免费3d模型下载网,海量别墅公寓3d模型下载!
{{ detailData && detailData.praise || 0 }}
声明:
本文由发布人:【一叶知秋】进行上传及发布,原文章/作品著作权归原作者所有,仅供个人学习交流使用,不构成商业目的;如需商业用途,请联系原作者授权后使用,如涉嫌侵权被追究法律责任与欧模网无关!
本站网友评论及内容发布仅供其表达个人看法,并不表明欧模网的立场或观点。