255㎡ 沈阳1949办公空间 | 有田建筑空间设计_欧模网
项目名称:1949 办公空间
项目地址:辽宁 沈阳
项目面积:255㎡
完成时间:2019
设计公司:有田建筑空间设计有限公司
设计主创:田然
设计团队:常宁 马帅
设计材料:地板 黑色玻璃 大理石
摄 影:图派影像 钟永刚
“工作就是人生的价值,人生的欢乐,也是幸福之所在”——罗丹
▼办公空间概览
时代变革,反应在设计方面的改变,注重交流,关注内心。办公室不仅仅是办公场所,也是每天八小时的生活。1949是一个共享的工作空间概念设计,开放、灵活的空间侧重激发更多想象的可能,促进团队成员有效的沟通,气场之间的强化。
▼空间细节

模糊了格子间,工位,会议室这些固化名词,使用者可根据需求改变可移动式办公设备位置。没有过多形式化的东西,不局促,不局限。最基本线条结构纵横空间,以大面积通透的玻璃取代墙面,剥离而裸露天花原本的形态,混凝土地面与木材质友好拼接,黑白调的纯粹办公场所开敞,无距离感,兼具个性与实用性。斑驳锈钢板以谦卑的姿态为空间带来不可思议的力量感与艺术气息。
▼旋转式透明玻璃板取代了隔墙
▼黑白调的纯粹办公场所开敞且无距离感
▼办公空间细部
▼从入口望向工作区
书籍,藏品以阵列式收纳,不限于多元化体验浓缩在室内空间里,更多的是成为使用者发现内在美好的空间载体。
▼书架和收纳区
▼入口区域细部

开放与封闭相互交织,使用者对自己的工位有绝对的自主权,用以保持独立空间内的思考,动线设计又为不同部门创造交叠互通的机会。光线随着日光的转移也在微妙变化。光在哪里停留,哪里就是最好的位置。
▼入口走廊

“照天性来说,人人都是艺术家,他无论在什么地方,总是希望把美带到他的生活中去”,高尔基这样描绘随性而优雅的艺术。
▼线性灯具

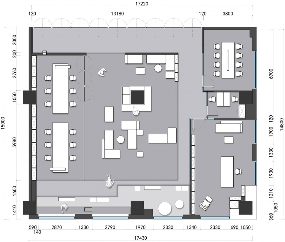
▼平面图
欧模网-室内设计3d模型下载网站
{{ detailData && detailData.praise || 0 }}
声明:
本文由发布人:【一叶知秋】进行上传及发布,原文章/作品著作权归原作者所有,仅供个人学习交流使用,不构成商业目的;如需商业用途,请联系原作者授权后使用,如涉嫌侵权被追究法律责任与欧模网无关!
本站网友评论及内容发布仅供其表达个人看法,并不表明欧模网的立场或观点。