开普敦Hillside View别墅设计 | ARRCC设计_欧模网
空间名称:Hillside View
空间地址:南非开普敦
设计公司:ARRCC
空间主材:石材、大理石、花岗岩、墙砖、木材、橡木、金属、镜面、不锈钢、黄铜、陶瓷、混凝土、皮革、 墙纸、玻璃、织物地毯、聚碳酸酯、冲孔板软装家具:Flex Form沙发、Curator沙发、Missoni、Globe扶手椅、Lean on Me落地灯、Faye、Frank、Neo、Stix咖啡桌
在开普敦的绿树成荫的郊区内,隐蔽地矗立着一座独立住宅,它不仅拥有着现代化的玻璃外墙,更有着充满活力的室内设计。设计灵感来源于住户对色彩和材料的喜爱和研究。通过将住户众多的、各式各样的艺术收藏品纳入到设计的考量范围内,我们得以创造出一个舒适的空间,让艺术品和家具进行动态的对话。
在由大理石打造而成的宽敞的住宅入口大厅内,带有三角形图案纹理、色彩鲜艳的几何展示柜与双色绒面革沙发、角形地毯和有机排列的边桌交相辉映,相辅相成。这种空间设计创造出一种轻松而宁静的家庭氛围。
位于首层的休息室充满自然光线。在这里,建筑师设置了一系列象牙白色饰面的L型Flex Form沙发,同时搭配了OKHA标志性的Curator系列沙发。Curator系列沙发是一种贵妃椅式的现代躺椅,其几何曲线将人们的视线引导至醒目的蓝色地毯和由Everard Read画廊的造型大师Andrzej Urbanski设计的艺术品处,装有玻璃滑动门的立面将天空和花园融入房间的视觉语言体系中,配合着蓝色地毯和色彩丰富的艺术品,营造出一种轻松的氛围。
在这空间设计项目中,非正式休息室空间以色彩作为设计焦点,采用海蓝色的地毯来进行空间布置,而Paola Navone为Baxter所设计的青色靠垫和绿色陶瓷桌则延续了海蓝宝石的主题。此外,建筑师还在这里安置了两个以米索尼(Missoni)面料作为饰面材料的软垫搁脚凳,配以面料上V形的图案,打破了空间的整体色块,为这个家庭活动室增添了一丝俏皮感,进一步提高了空间的品质,深浅灰色色调的定制DJ台将音乐融入了日常的生活体验中。
由家具设计事务所OKHA的设计师Adam Court专门设计的Globe扶手椅和Lean on Me落地灯环绕着壁炉并列设置,其白色的色调为这个亲切的室内环境增添了些许清爽感。彩色气球状的玻璃花瓶是OKHA家具事务所的精选配饰系列之一,进一步突出了这个色彩丰富、形式优雅的空间。
厨房通过一扇折叠式滑动木门与餐厅相连,在这里,人们可以看到由花岗岩和木材共同打造而成的柜台,以及各种由OKHA设计的酒吧器具,如由钢材、木材和皮革制成的Faye、Frank和Neo系列家具,其定制的棕褐色和灰色调与厨房的中性色调和谐相融
带顶棚的露台俯瞰着被草地包围着的泳池,成为休闲娱乐区的自然延伸。露台空间内设置壁炉、烧烤架和比萨烤箱,创造出一个光影斑驳的室外空间,为住户提供了一个可以轻松悠闲地享受露天活动的场地。冷灰色的混凝土楼板通过天然的石材镶板块,与较暗的炭灰色墙体相适应。一些喷砂的石灰华和预制混凝土后设置背光,当夜幕降临的时候,整个空间幽静地散发出光芒,营造出一种淡漠的氛围
为了符合住户的期望,建筑师对上层空间中卧室的室内空间进行了精心的设计。在儿童卧室的设计中,我们采用了非常醒目的原色色调和渲染式墙面,辅以吊床和桶凳等俏皮的元素,增强了空间的新鲜感。
主客房的室内设计同样迷人,建筑师通过Kelly Wearstler设计的Graffito壁纸和定制的地毯延续了家居的图案,同时通过自由流动的线条创造出富有想象力的形状。来自OKHA的Rayon几何台灯由不锈钢打造而成,优雅地伫立在床的两侧。同时,套间内的浴室也享有全景视野,其整面的壁挂式的镜子能够反射来自山腰的阳光。
在凛冽的冬日里,地下室的家庭影院便成为了最受欢迎的家庭活动空间。这里配有大量的舒适的灰色躺椅、沙发和坐卧两用的长椅,可以举办全天式的电影盛会。雪茄室兼酒窖同样诱人,其桶形穹隆状的天花板和板形的混凝土饰面扩大了这个茧状空间的视觉效果,营造出一种超凡脱俗的空间氛围。由OKHA提供的Stix咖啡桌是桶形天花板在形状和材料上的延伸,其圆形的形状模仿了圆形的地毯,在拱形顶部下方创造出一个视觉焦点。


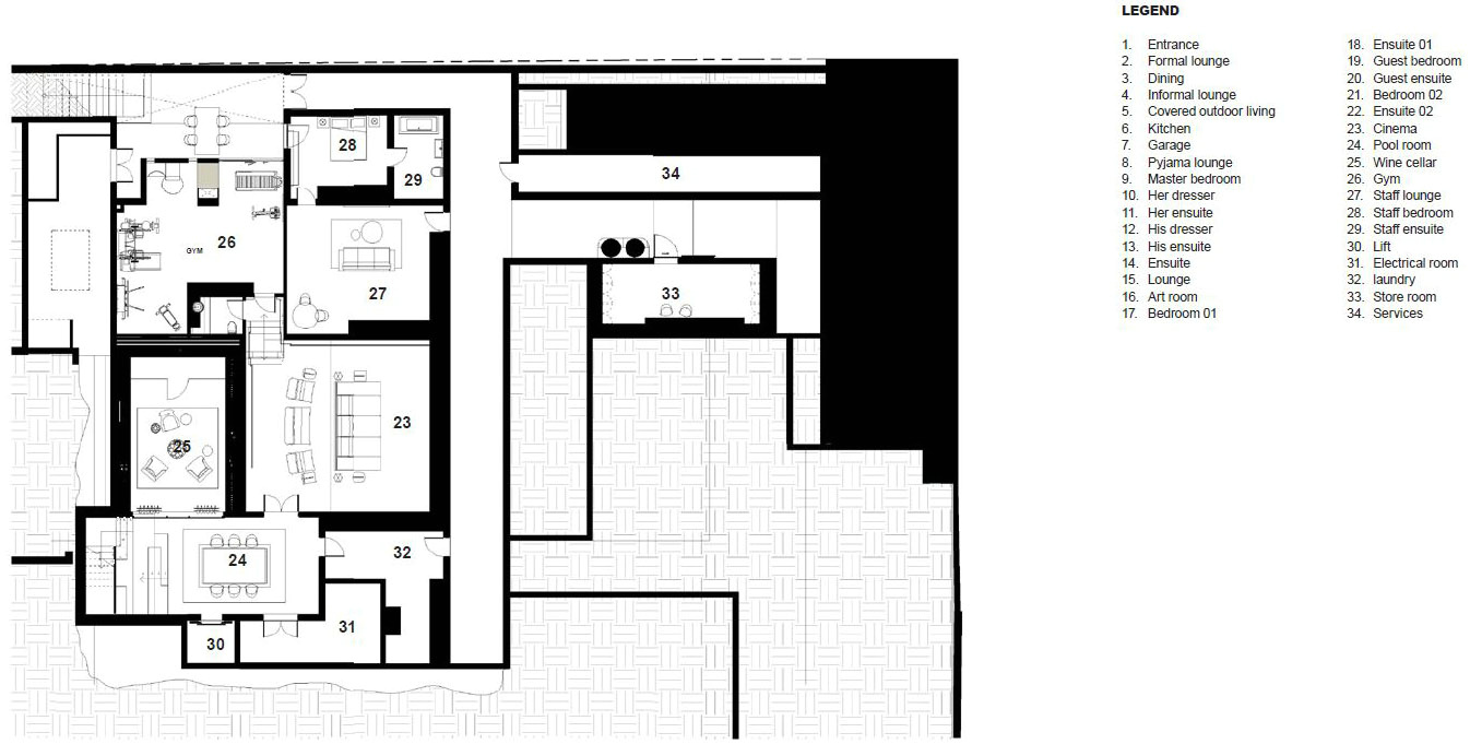
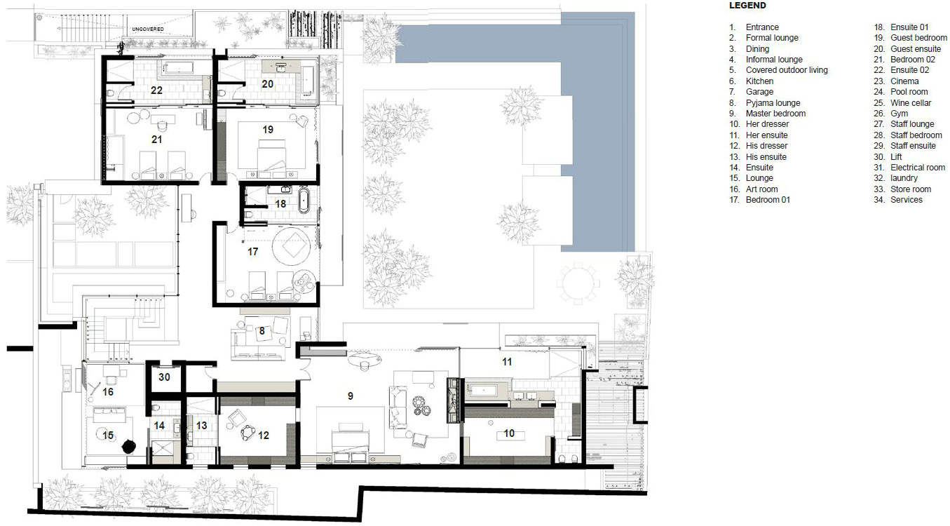
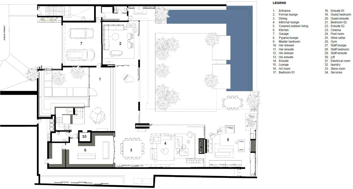
平面图



欧模网-3d模型免费下载网,优质模型一键下载!
{{ detailData && detailData.praise || 0 }}
声明:
本文由发布人:【一叶知秋】进行上传及发布,原文章/作品著作权归原作者所有,仅供个人学习交流使用,不构成商业目的;如需商业用途,请联系原作者授权后使用,如涉嫌侵权被追究法律责任与欧模网无关!
本站网友评论及内容发布仅供其表达个人看法,并不表明欧模网的立场或观点。