花舍山间 | 原榀建筑-欧模网
建筑师:原榀建筑
地址:石湖峪村10号,九渡河镇,怀柔区,北京市,中国
类别:酒店
主创建筑师:周超
设计团队:邓可超、张航、覃思源
建筑面积:158.0㎡
项目年份:2019
摄影师:何炼
场地与环境
花舍山间位于北京怀柔九渡河镇石湖峪村,该村落位于著名的水长城脚下,周边山脉绵延,风景十分秀丽。基地为一处典型的北方院落,北侧为条形的建筑,南侧为方形的院子,基地东侧和南侧视野开阔,远眺绵延的山脉,且能看到蜿蜒的长城。老房子为木结构承重、砖石围护的建筑,曾经作为一部乡村爱情故事电视剧的取景地。如今,这栋院落早已无人居住,变得凋敝不堪。业主是一对青年夫妇,魏先生是吉他手,童年在怀柔的村庄里度过,王女士是花艺师,他们对这里的村庄和自然环境有着特殊的感情。他们希望将他们所擅长的花艺活动在此处展现,将这里打造一处兼具民宿和社交功能的院落。


新旧并置
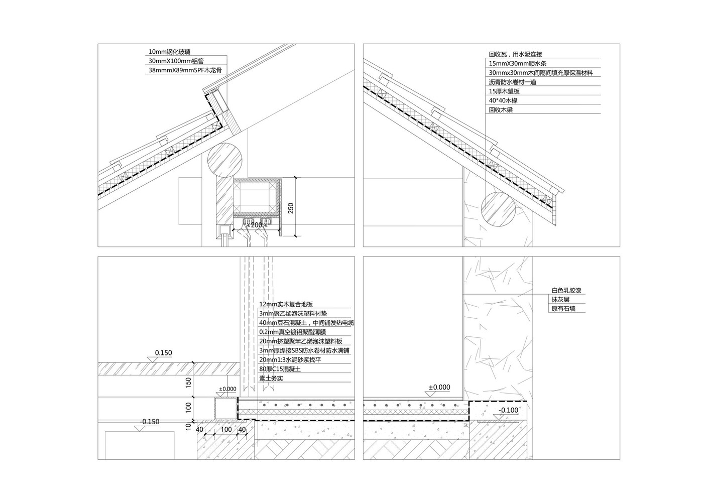
原有的房屋由一栋五开间的主体建筑和一栋两开间的附属建筑组成。房屋的进深很小,约4.2米,空间非常紧张。原有建筑显然无法满足新的功能要求,需要对其进行适当的加建。我们在东南角扩建木结构的多功能厅,贴紧原附属建筑,让附属建筑和木结构的一层内部连通,二者连成一体形成了厨房和餐厅空间。木结构的二层为茶室和观景露台,可将远处的长城景观纳入视野。同时,将原主体建筑改造为三间客房,每个房间加建一个观景盒。这三处观景盒子尺寸各不相同,让室内空间尽可能向外延展。三个观景盒的内部采用钢结构,外部使用松木板包裹,让它们漂浮在地面上。轻型建造的方式,在新和旧、重和轻的强烈对比下,老房子重新获得了新的生命。



建造策略
老房子的改造策略为保留原有木结构,更新部分外界面。我们将东西两侧、北侧的石头墙体完全保留,而将南面的外墙全部改造,并合理的组织了出入口、窗户和观景盒子。拆除了原有破败的屋顶,增加了保温层和防水层,增加了可以看星空的天窗,并将原有的小青瓦回收再利用。老房子代表着历史和记忆,如何让新建部分对老房子的影响降至最小,是我们从设计一开始就思考的问题。最终,我们继续沿用了轻型建造的方式,这是我们多年以来一直研究和实践的方向。加建部分采用原木结构,用金属件和螺栓连接,在较短的时间内即可装配完成。二层的木结构局部后退,保留了南侧院墙处的一个枣树,既减少对庭院的压迫感,也形成了一处位置极佳的观景露台。
建筑和自然
整个改造围绕着建筑和自然的关联展开。一方面,采用木结构加建,因木材是一种自然的材料,而且老房子本来就是木结构承重的。另一方面,我们想让自然更好的渗透到建筑内部,加建部分采用了大面积的玻璃,形成了若干取景框,让内部呈现更开阔的视野,建筑和自然能更好的对话。院子里还保存了原有的几棵柿子树,每到深秋时节,柿子树会结出红彤彤的小柿子,如同一个个小灯笼。业主在院子里精心种植的鲜花,让这里成为一处近看花团锦簇、远看长城逶迤的特色民宿院落。

















欧模网-免费3d模型下载,分享室内装修设计资讯,还有实用的软件干货!
{{ detailData && detailData.praise || 0 }}
声明:
本文由发布人:【一叶知秋】进行上传及发布,原文章/作品著作权归原作者所有,仅供个人学习交流使用,不构成商业目的;如需商业用途,请联系原作者授权后使用,如涉嫌侵权被追究法律责任与欧模网无关!
本站网友评论及内容发布仅供其表达个人看法,并不表明欧模网的立场或观点。