- 找3d模型上欧模网
案例 2020年06月13日

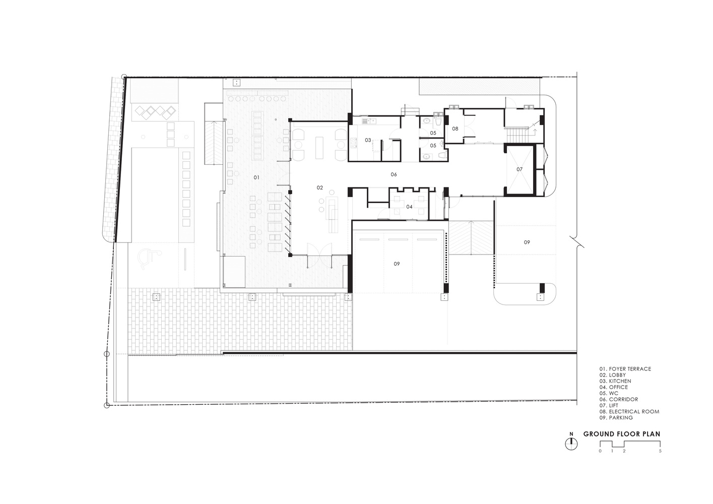
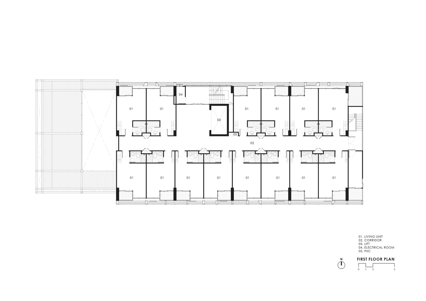
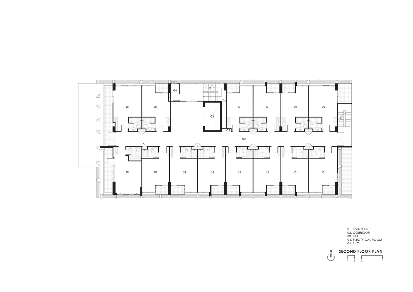
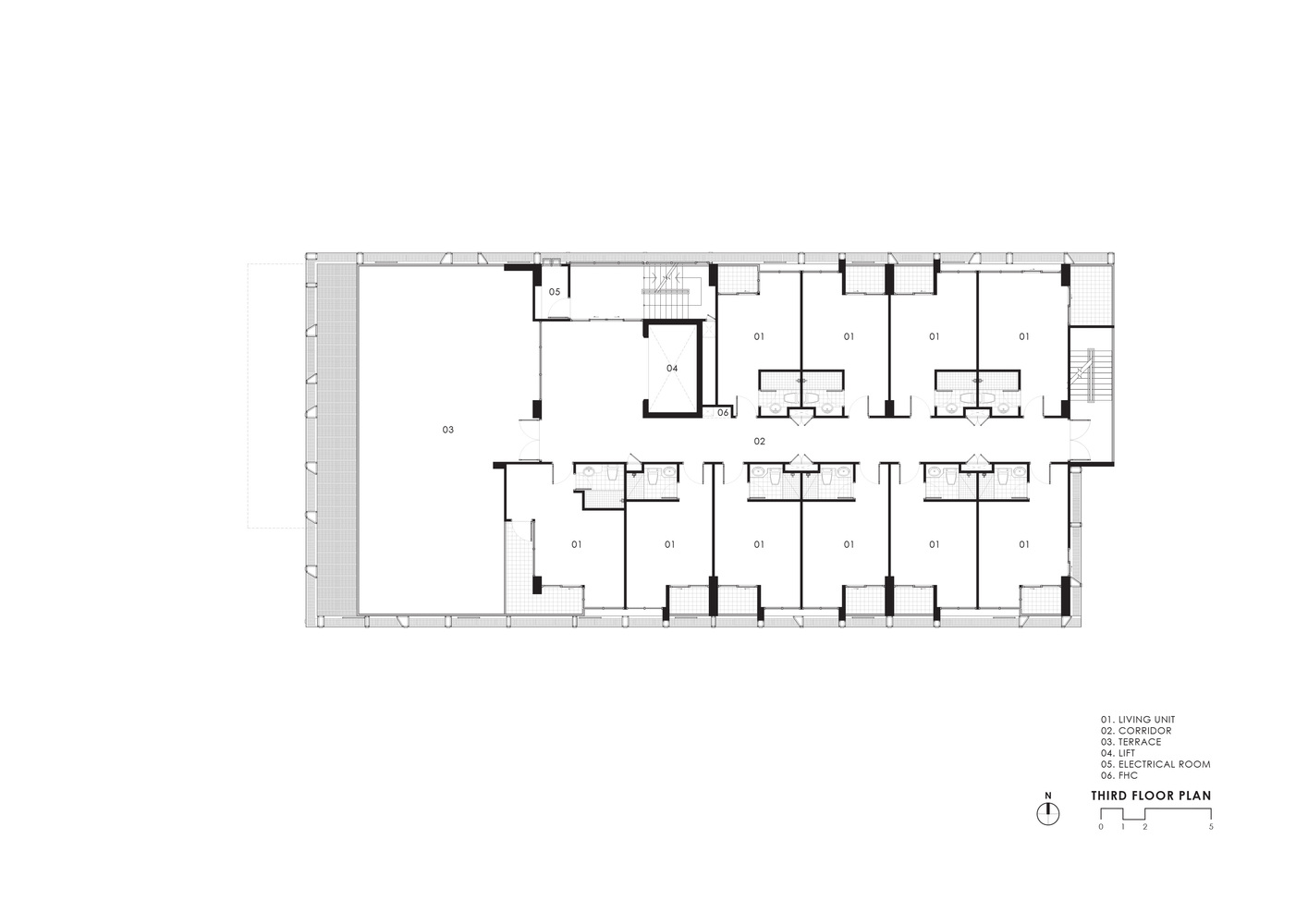
Navakitel Design Hotel酒店位于泰国南部最古老的城市之一那空是他玛叻(Nakhon Si Thammarat)的中部。该地点被商店和住宅所包围。这家酒店包括68个住宿单元,位于一楼的大堂和位于三楼的开放式露台,用于组织酒店活动。












该项目的开始是设计具有钢筋混凝土结构的公寓。为了将公寓的功能转换为酒店,建筑师决定保留已经建造到第二层的其余建筑平面图。从结构图中,按照房间大小对房间类型进行分类,每个楼层具有相似的房间类型。












建筑师为这栋7层高的混凝土建筑选择了薄而锋利的钢板,以融化建筑的厚度。通过使用坚固的钢板和膨胀金属来创造一些尺寸并模糊建筑物的坚固性,它还可以使自然光穿透建筑物。

在该项目中,建筑师还精心设计了通常被忽略的建筑系统。建筑师曾咨询电气工程师,以将建筑系统与照明装饰以及室内空间中的其他设备(包括客房,大厅和走廊)集成在一起。而不是用石膏天花板将其隐藏起来,该系统部分被暴露了出来,建筑师和工程师之间的合作结果后来成为建筑美学的一部分。

利用当地手工艺的专业知识(包括铁匠,木匠和泥瓦匠),他们知道如何将其应用于建筑和室内设计,以通过酒店设计来反映呵叻府的独特特色。




标签:
声明:
本文由发布人:【苹果被牛顿吃了】进行上传及发布,原文章/作品著作权归原作者所有,仅供个人学习交流使用,不构成商业目的;如需商业用途,请联系原作者授权后使用,如涉嫌侵权被追究法律责任与欧模网无关!
本站网友评论及内容发布仅供其表达个人看法,并不表明欧模网的立场或观点。
苹果被牛顿吃了
文章:184 问答:0