- 找3d模型上欧模网
案例 2020年07月24日



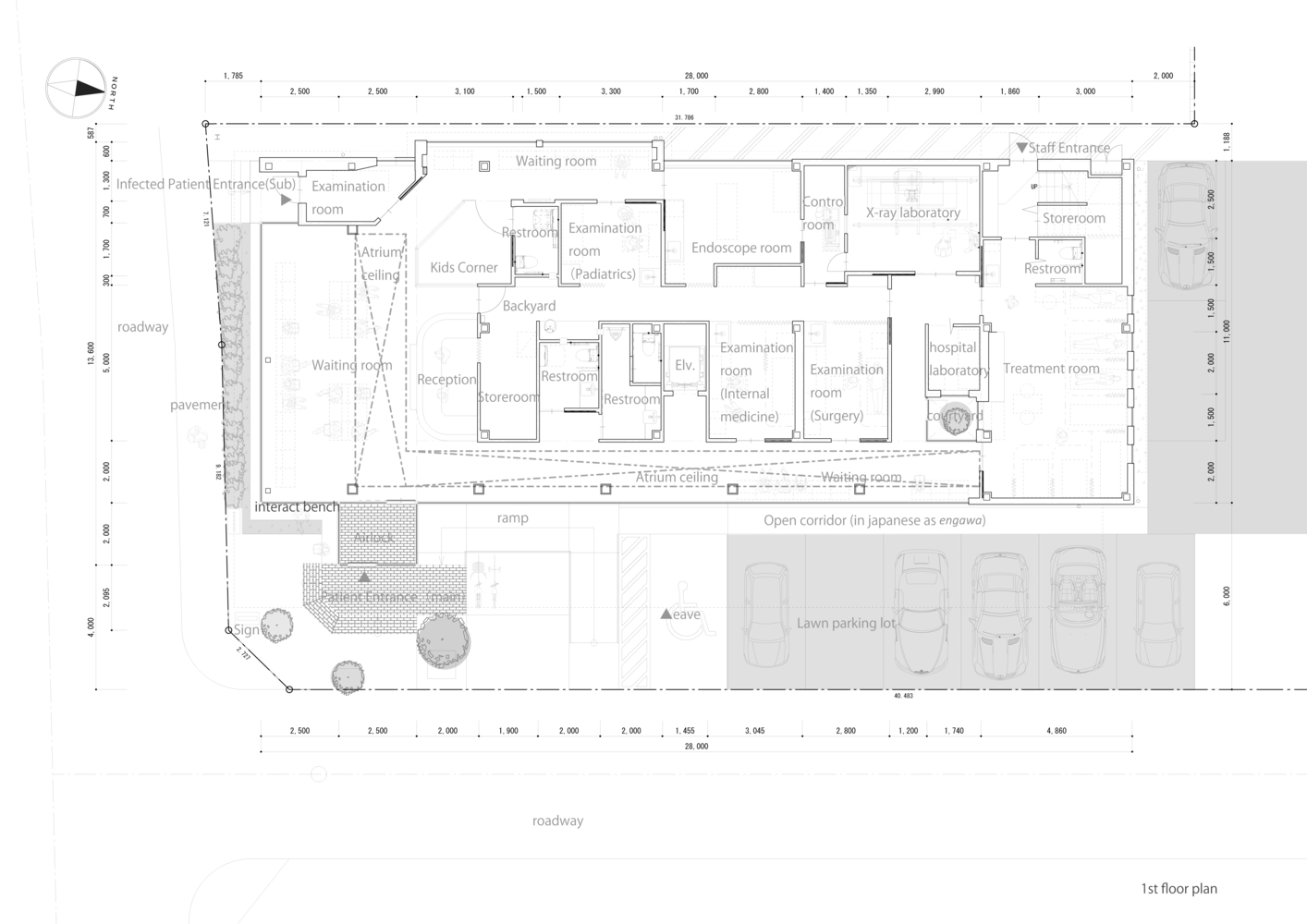
该地点位于名古屋市的北部,那里是著名的居民区,人口众多。我们将大檐从建筑物内部延伸到交通繁忙的小镇之间的切线处。大木头可以容纳病人,并产生一个空间,使病人即使在建筑物外也能感受到安全感,是城镇的象征。


在诊所内部,我们提供了一个等候空间,通过沿切线设置L形开放式天花板空间,患者可以感受到阳光的温暖和开放的感觉。大檐和L形的开放式天花板空间为渐变镇和诊所之间的边界生成了渐变。除了用作建筑空间外,他们还创造了一个舒适的中间空间。

L形的开放式天花板空间除了使用诊所的内部和外部之外,还连接了第二层康复室和候诊室的空间,使患者可以像在医院一样度过放松,舒适的时光大堂。人们直接触摸部分时使用了大量的木质材料,以减少紧张感。该建筑物具有“温暖的透明度”。



为了配置大檐和L形的开放式天花板空间,我们采用了带有支撑的钢结构。开放式天花板空间的上部空间桁架起着重要作用。尽管由空间桁架构成的Y形钢柱插在木材之间,但有意看到钢构件以显示钢构件的功能性装置。





为了隐藏开放式天花板空间的水平构件,空间桁架由一半尺寸的H型钢和扁钢组成。空间桁架和屋顶的表面刚度支撑大檐,同时确保水平方向的动力传递。我们在通道的地板上使用了手工制作的瓷砖,在草坪上使用了混凝土块作为停车位,以营造出像公园一样的氛围。

标签:
声明:
本文由发布人:【苹果被牛顿吃了】进行上传及发布,原文章/作品著作权归原作者所有,仅供个人学习交流使用,不构成商业目的;如需商业用途,请联系原作者授权后使用,如涉嫌侵权被追究法律责任与欧模网无关!
本站网友评论及内容发布仅供其表达个人看法,并不表明欧模网的立场或观点。
苹果被牛顿吃了
文章:184 问答:0