- 找3d模型上欧模网
案例 2020年08月11日



该提议是对现有商店的翻修,以解决医疗美学诊所“CorporaciónDermoestética”的问题。现有空间被整合到一栋建筑物中,周围的许多建筑物都来自60年代和70年代。街道所在的城市前线-Av。安东尼奥·奥古斯托·德·阿吉亚尔(AntónioAugusto de Aguiar)–具有非常均匀的房屋建筑,一楼有商业用途。迫切需要保持并强调这种同质性,而引入优质商业空间是确保这种同质性的方法。

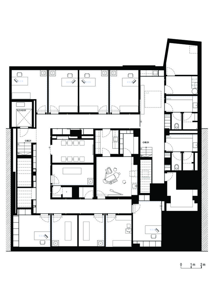
该功能程序分布在两个楼层(0和-1),由两个楼梯和一个电梯连接。主入口位于底楼,因为该楼层是与外部相连的楼层。与外界的联系是该提案的主要关注之一。迅速识别品牌非常重要,但同时也不能损害城市整体。








该项目旨在传达品牌特有的清洁,自信和“魅力”的理念。这个概念可以调和纯度,光泽和宁静,并且可以在该品牌的所有诊所,现在和将来的诊所中重新创建。 
对于这种现代而迷人的图像,在拥有舒适感和舒适感的明亮空间中,色彩以非常重要的方式起作用,这就是选择白色的原因。所有的装饰材料以及家具都具有反光的表面和连续的白色表面,从而确保了纯净,清洁和宁静的感觉。这种现代外观的增值作用已转移到人类身上,并体现在他将能够使自己和周围社会感觉良好的治疗方法上。所有干预都基于这种幸福感和自尊心,这不仅体现在建筑语言上,而且还体现在所选择的建设性过程上。

标签:
声明:
本文由发布人:【苹果被牛顿吃了】进行上传及发布,原文章/作品著作权归原作者所有,仅供个人学习交流使用,不构成商业目的;如需商业用途,请联系原作者授权后使用,如涉嫌侵权被追究法律责任与欧模网无关!
本站网友评论及内容发布仅供其表达个人看法,并不表明欧模网的立场或观点。
苹果被牛顿吃了
文章:184 问答:0